Menu

搜索更多信息

OLED面板张网机平台

应用场景

适用于面板检测、修复行业

产品介绍


1726209507.png

产品特点

精密直线导轨 

无铁芯电机 产品特点 

超高的速度稳定性 

兼顾大行程、高精度、重负载 

超大检测幅面 

可定制小世代至大世代多种机型


1726209533.png

结构特点

龙门结构,稳定性高 

低阿贝误差 

平台结构紧凑,有较强的驱动能力


1726209553.png

定制化

可以根据客户需求配置、

行程、负载、特殊结构等

进行评估定制


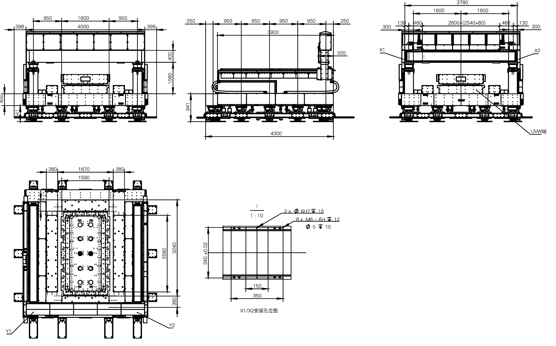
产品参数

image.png

外形尺寸

image.png